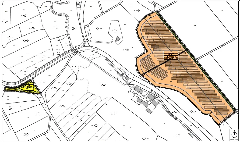
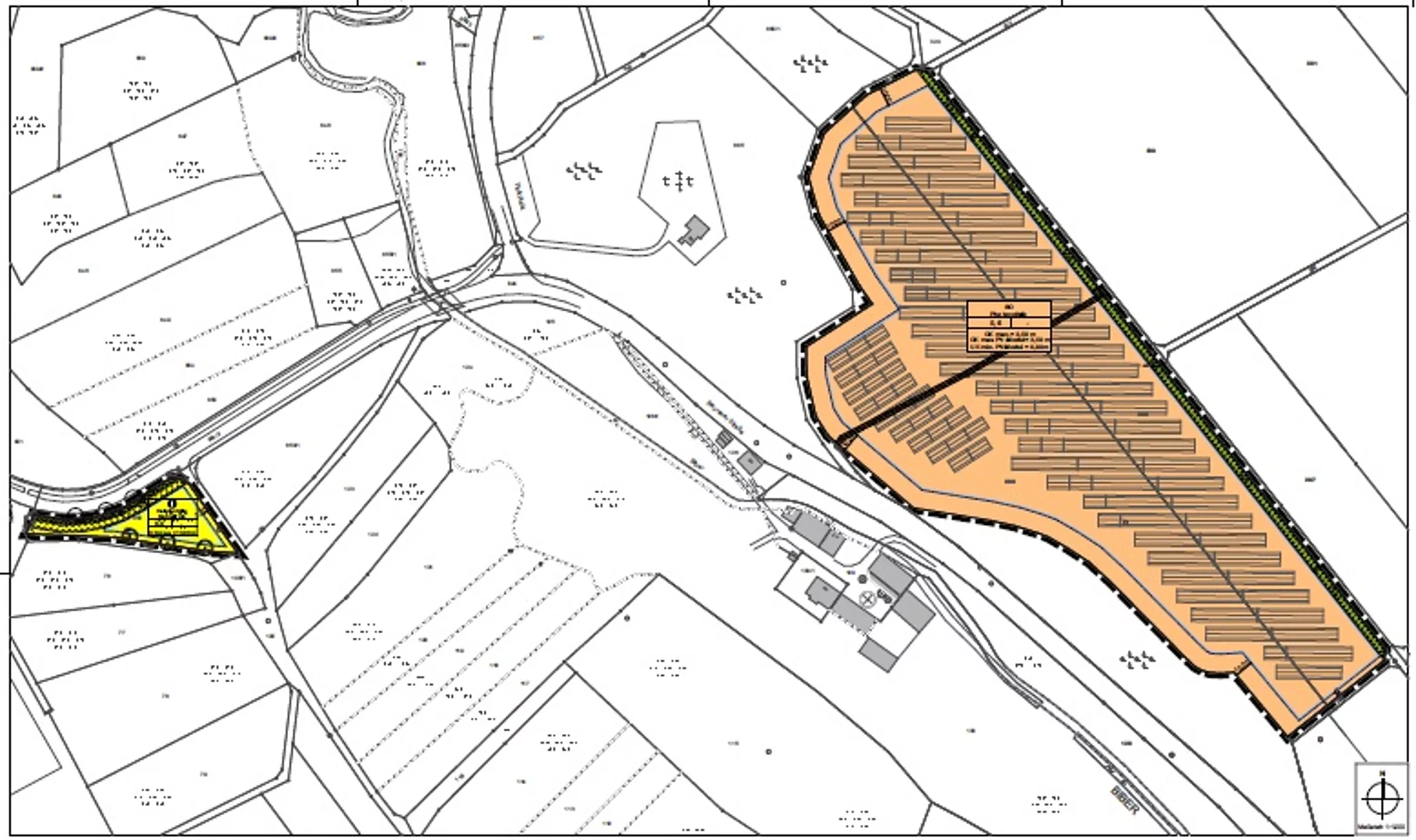
Bekanntmachung des Satzungsbeschlusses für den Bebauungsplan „Nahwärme Beuren“ sowie der Genehmigungsfiktion der Änderung des Flächennutzungsplanes „Nahwärme Beuren“

Der Markt Gemeinderat hat in seiner Sitzung am 28.09.2023 den Bebauungsplan „Nahwärme Beuren“ als Satzung und die parallele Flächennutzungsplanänderung als Feststellung beschlossen. Maßgebend ist der Bebauungsplan mit textlichen Festsetzungen und Begründung in der Fassung vom 18.09.2023 und für die Flächennutzungsplanänderung die Planzeichnung sowie die Begründung ebenfalls in der Fassung vom 18.09.2023.
Gemäß Schreiben vom Landratsamt Neu-Ulm vom 22.01.2024 unterliegt die Änderung des Flächennutzungsplanes „Nahwärme Beuren“ des Marktes Pfaffenhofen a. d. Roth in der Fassung vom 18.09.2023 der Genehmigungsfiktion gemäß § 6 Abs. 4 Satz 4 BauGB. Die Erteilung der Genehmigung wird hiermit gemäß § 6 Abs. 5 des Baugesetzbuchs (BauGB) ortsüblich bekannt gemacht. Mit dieser Bekanntmachung wird die Änderung des Flächennutzungsplanes „Nahwärme Beuren“ wirksam. Jedermann kann den Flächennutzungsplan und die Begründung sowie die zusammenfassende Erklärung über die Art und Weise, wie die Umweltbelange und die Ergebnisse der Öffentlichkeits- und Behördenbeteiligung in dem Flächennutzungsplan berücksichtigt wurden, und aus welchen Gründen der Plan nach Abwägung mit den geprüften, in Betracht kommenden anderweitigen Planungsmöglichkeiten gewählt wurde, im Rathaus Pfaffenhofen, Kirchplatz 6, 89284 Pfaffenhofen an der Roth
während folgender Zeiten
Montag | 09:00–12:00 |
Dienstag | 09:00–12:00 |
Mittwoch | 09:00–12:00, 15:00–17:00 |
Donnerstag | 09:00–12:00, 15:00–18:00 |
Freitag | 09:00–12:00 |
einsehen und über deren Inhalt Auskunft verlangen.
Auf die Voraussetzungen für die Geltendmachung der Verletzung von Verfahrens- und Formvorschriften und von Mängeln der Abwägung sowie der Rechtsfolgen des § 215 Abs. 1 und 2 BauGB wird hingewiesen.
Unbeachtlich werden demnach
- eine nach § 214 Abs. 1 Satz 1 Nr. 1 bis 3 BauGB beachtliche Verletzung der dort bezeichneten Verfahrens- und Formvorschriften und
- eine unter Berücksichtigung des § 214 Abs. 2 BauGB beachtliche Verletzung der Vorschriften über das Verhältnis des Bebauungsplans und des Flächennutzungsplans und
- nach § 214 Abs. 3 Satz 2 BauGB beachtliche Mängel des Abwägungsvorgangs, wenn sie nicht innerhalb eines Jahres seit Bekanntmachung des Flächennutzungsplans schriftlich gegenüber der Gemeinde geltend gemacht worden sind; der Sachverhalt, der die Verletzung oder den Mangel begründen soll, ist darzulegen.
Pfaffenhofen, den 26. Januar 2024
Dr. Sebastian Sparwasser,
1. Bürgermeister