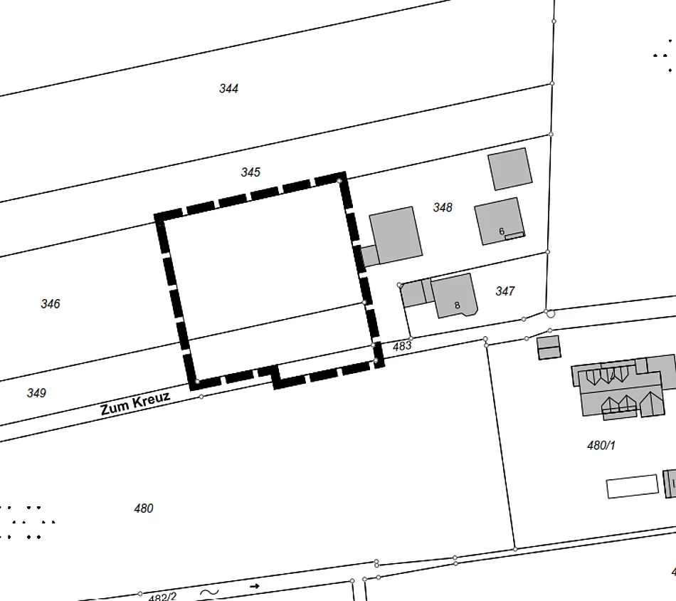
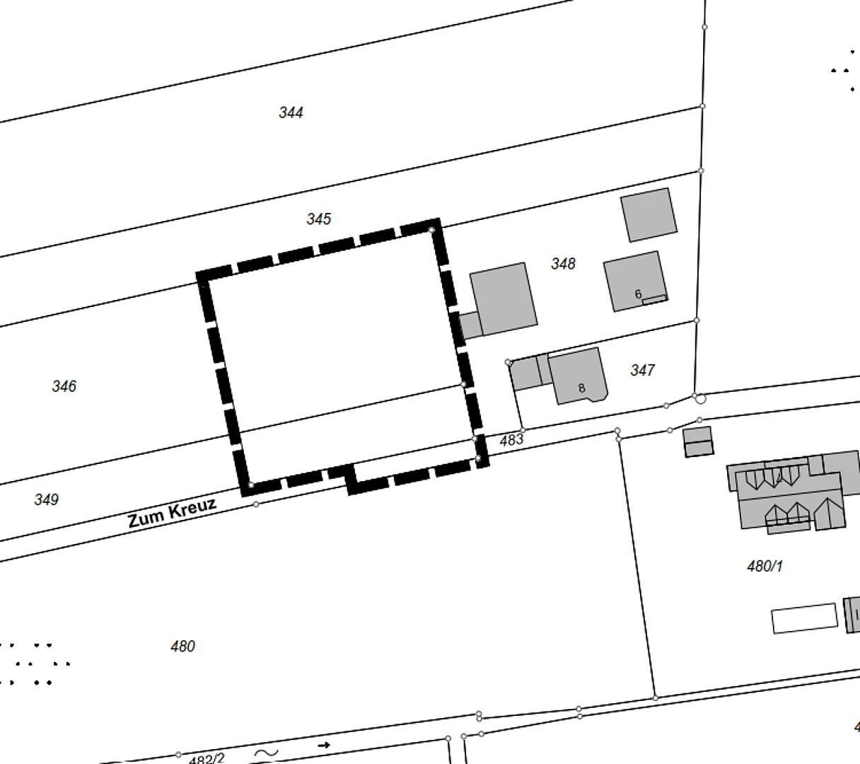
Bekanntmachung über die Aufstellung des Bebauungsplanes „Flur-Nr. 346 und 349 Gem. Erbishofen"

Bekanntmachung der Veröffentlichung gemäß § 3 Abs. 2 BauGB des Bebauungsplanes „Flur Nrn. 346 u. 349 (östl. Teilflächen), Gmk. Erbishofen“
Der Markt Pfaffenhofen a.d. Roth hat am 21.11.2019 beschlossen, für das Baugebiet „Flur Nrn. 346 u. 349 (östl. Teilflächen), Gmk. Erbishofen“ einen Bebauungsplan im Sinne des § 30 BauGB im ehemals beschleunigten Verfahren nach § 13b BauGB aufzustellen. Am 18.07.2023 hat das BVerwG entschieden (Az. 4 CN 3.22), dass § 13b BauGB gegen EU-Recht verstößt. Am 1. Januar 2024 trat § 215a BauGB in Kraft, womit den Gemeinden durch eine umweltbezogene Einzelfallprüfung (Vorprüfung) ermöglicht, entsprechend § 13a Abs. 1 Satz 2 Nr. 2 i.V.m. Anlage 2 BauGB, bei negativem Ausgang der Vorprüfung, den B-Plan im beschleunigten Bebauungsplanverfahren auch ohne umfassenden Umweltbericht nach § 2 Abs. 4 Satz 1 i.V.m. Anlage 1 BauGB fortzuführen. Der vorliegende Bebauungsplan wird nach negativem Ausgang der Vorprüfung des Einzelfalls ohne Umweltprüfung durchgeführt.
Das Plangebiet liegt am südwestlichen Ende des Ortsteils Erbishofen und hat eine Größe von ca. 0,2 ha. Der Bebauungsplan dient der Baurechtschaffung für neue Wohnbauflächen (allgemeines Wohngebiet gemäß § 4 BauNVO).
Der Marktgemeinderat hat in der Sitzung vom 27. Juni 2024 den Entwurf des Bebauungsplans gebilligt.
Der Inhalt dieser Bekanntmachung sowie der Entwurf des Bebauungsplans für das Gebiet „Flur Nrn. 346 u. 349 (östl. Teilflächen), Gmk. Erbishofen“ und die Begründung werden gemäß § 3 Abs. 2 BauGB
vom 05.08.2024 bis einschließlich 19.09.2024
im Internet unter www.markt-pfaffenhofen.de veröffentlicht.
Zusätzlich zur Veröffentlichung im Internet liegen die Planunterlagen während der Veröffentlichungsfrist im
Rathaus/in der Marktverwaltung, Zimmer 7, Anschrift: Kirchplatz 6, 89284 Pfaffenhofen a.d. Roth
während folgender Öffnungszeiten (Montag bis Freitag 09:00 bis 12:00 Uhr sowie Mittwoch 15.00 bis 17:00 Uhr und Donnerstag 15:00 bis 18:00 Uhr) öffentlich aus.
Die Zahl der durch das Planungsvorhaben betroffenen Belange sowie der Umfang der einzusehenden Unterlagen bewegen sich im Rahmen eines durchschnittlichen Planungsvorhabens. Eine Verlängerung der Veröffentlichungsfrist nach § 3 Abs. 2 S. 1 BauGB ist nicht erforderlich.
Stellungnahmen können während der Dauer der Veröffentlichungsfrist abgegeben werden.
Bevorzugt sind die Stellungnahmen elektronisch per E-Mail an das Rathaus/die Marktverwaltung (bauamt@vg-pfaffenhofen.de) zu übermitteln. Als Betreff geben Sie bitte an: Bebauungsplan “Flur Nrn. 346 u. 349 (östl. Teilflächen), Gmk. Erbishofen“.
Bei Bedarf können Stellungnahmen auch schriftlich oder während der Dienststunden zur Niederschrift abgegeben werden.
Nicht fristgerecht abgegebene Stellungnahmen können bei der Beschlussfassung über den Bebauungsplan unberücksichtigt bleiben, wenn die Gemeinde den Inhalt nicht kannte und nicht hätte kennen müssen und deren Inhalt für die Rechtmäßigkeit des Bebauungsplans nicht von Bedeutung ist.
Arten der vorhandenen Informationen | Verfasser | Themen |
Fachgutachten | Kling Consult GmbH vom 12.09.2023 | Artenschutzrechtliche Relevanzprüfung |
Vorprüfung des Einzelfalls | Kling Consult GmbH vom 14.02.2024 | Vorprüfung des Einzelfalls bezüglich der relevanten Schutzgüter Tiere, Pflanzen, biologische Vielfalt, Boden, Fläche, Wasser, Klima, Luft, Landschaft, Mensch sowie Sach- und Kulturgüter. |
Datenschutz:
Die Verarbeitung personenbezogener Daten erfolgt auf der Grundlage der Art. 6 Abs. 1 Buchstabe e (DSGVO) i. V. mit § 3 BauGB und dem BayDSG. Sofern Sie Ihre Stellungnahme ohne Absenderangaben abgeben, erhalten Sie keine Mitteilung über das Ergebnis der Prüfung. Weitere Informationen entnehmen Sie bitte dem Formblatt „Datenschutzrechtliche Informationspflichten im Bauleitplanverfahren“, das eben-falls öffentlich ausliegt.
Pfaffenhofen a.d. Roth, 25.07.2024 gez. Dr. Sebastian Sparwasser