Neue Sozialwohnungen in Berg

Freistaat Bayern und Markt Pfaffenhofen bauen Wohnungen für Flüchtlinge und einkommensschwache Bürger
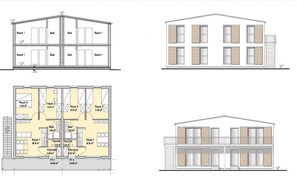
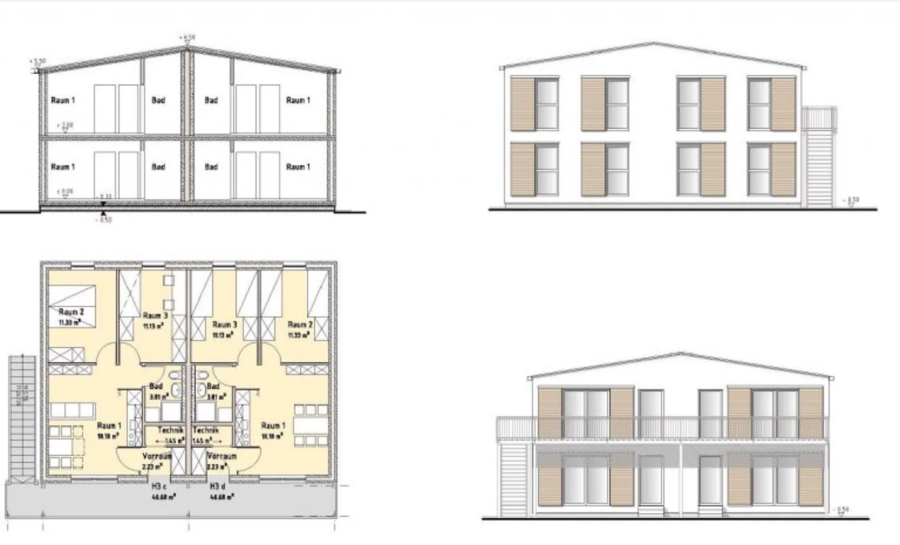
In seiner Sitzung vom 28. Januar machte der Marktrat den Weg für den Bau von Sozialwohnungen im Ortsteil Berg frei. Der Freistaat Bayern wird im Rahmen seines Programms - Wohnungspakt Bayern, Sofortprogramm für anerkannte Flüchtlinge - 4 zweistöckige Gebäude mit jeweils 4 Wohnungen errichten. Für die 45 qm großen Wohnungen ist eine Belegung von 3 - 4 Personen, in der Regel Familien, vorgesehen. Da voraussichtlich noch eine bis zwei Wohnungen für Verwaltung und Gemeinschaftsräume wegfallen werden dort zwischen 50 bis maximal 60 anerkannte Flüchtlinge mit Bleiberecht einziehen. Die Pläne des staatlichen Bauamtes Krumbach, das die Federführung bei der Planung hat, sehen eine lockere Bebauung mit gutem Baustandard vor. Diese Präsentation, die Lagepläne und weitere detaillierte Informationen beinhaltet, kann hier eingesehen werden.
In unmittelbarer Nachbarschaft plant der Markt Pfaffenhofen 2 Häuser im selben Stil mit ebenfalls je 4 Wohnungen zu errichten. Diese werden im Durchschnitt 65 qm haben und sind im Wesentlichen für einkommensschwache Bürger vorgesehen.
Heizung und Warmwasserbereitung soll über eine gemeinsame Anlage bewerkstelligt werden.