Sprungziele

Alle Nachrichten

Gedenken an den Absturz der Johnny Reb

    Auch in diesem Jahr begingen Vertreter der American Legion, der Soldaten- und Reservistenvereine und der Marktgemeinde ein gemeinsames Gedenken an den Absturz des amerikanischen Bombers Johnny Reb am 22. Februar 1945.

    Neubestellung des Kaminkehrers zum 01.02.2024

    • Pfaffenhofen a.d.Roth
    • Amtliche Bekanntmachungen

    Ab 01.02.2024 wird Michael Imminger unseren langjährigen Kaminkehrer Gerhard Egger ablösen. Jeder, der bisher von Herrn Egger besucht wurde, wird künftig von Herrn Imminger betreut.

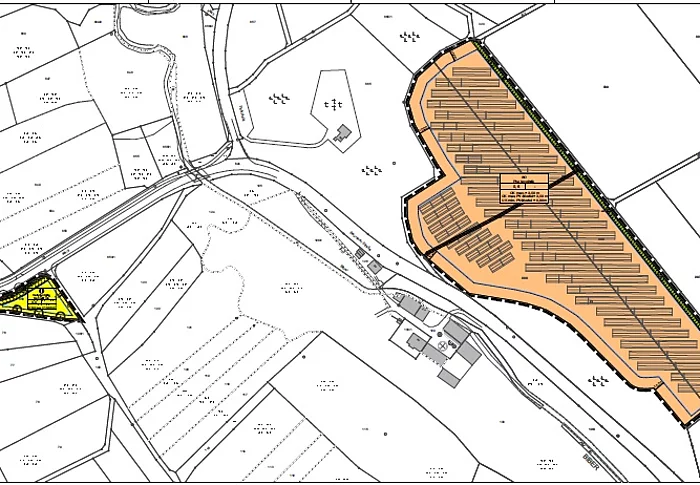
    Bekanntmachung des Satzungsbeschlusses für den Bebauungsplan „Nahwärme Beuren“ sowie der Genehmigungsfiktion der Änderung des Flächennutzungsplanes „Nahwärme Beuren“

      Der Markt Gemeinderat hat in seiner Sitzung am 28.09.2023 den Bebauungsplan „Nahwärme Beuren“ als Satzung und die parallele Flächennutzungsplanänderung als Feststellung beschlossen. Maßgebend ist der Bebauungsplan mit textlichen Festsetzungen und Begründung in der Fassung vom 18.09.2023 und für die Flächennutzungsplanänderung die Planzeichnung sowie die Begründung ebenfalls in der Fassung vom 18.09.2023.

      Filter