Sprungziele

Alle Nachrichten

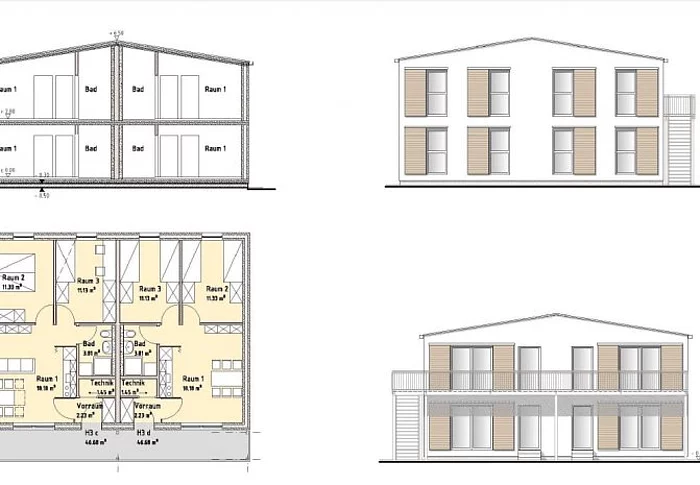
In Pfaffenhofen wird für die Zukunft gebaut

    Der Freistaat Bayern baut im Pfaffenhofener Ortsteil Berg Wohnungen für etwa 50 Menschen. Dieser hat für das Jahr 2016 im Rahmen des sogenannten "Wohnungspakt Bayern" 70 Millionen € für solche Projekte bereitgestellt. Grund dafür ist, dass anerkannte Flüchtlinge die Gemeinschaftsunterkünfte verlassen müssen und möglichst rasch ein anderes Dach über dem Kopf erhalten sollen. Frieder Vogelsgesang, der das Projekt in Berg als Bereichsleiter „Hochbau“ am Staatlichen Bauamt Krumbach verantwortet,…

    Rathaus im Sturm übernommen

      Was zu erwarten war, Weiberfasnet und die Hexen kommen. Mit Gesang stürmten sie das Rathaus, ohne auf nennenswerten Widerstand zu stoßen. So war es ein leichtes für die Hexe mit offensichtlichem Migrationshintergrund die Krawatte des Rathauschefs zu erobern und stolz zu präsentieren. In gereimter Form wurde dann die unglaubliche Geschichte der Tigerbadehose des Bürgermeisters zum Besten gegeben, das Corpus Delicti hatten die Hexen mitgebracht. Die alten Hexen stellten, nachdem sie die…

      Optimismus beim Neujahrsempfang

        Der Pfaffenhofener Neujahrsempfang erfreut sich ungebrochener Beliebtheit. Zahlreiche Bürger und viele Ehrengäste füllten die Aula der Hermann-Köhl-Schule. Das auch an Ehrengästen kein Mangel herrschte ist besonders erfreulich, da seit vergangenem Jahr der Neujahrsempfang im benachbarten Weißenhorn am gleiche Sonntag stattfindet. Eröffnet wurde der Empfang, wie es schon gute Tradition ist, mit Salut der Pfaffenhofener Böllerschützen. Für die sehr gelungen musikalische Umrahmung sorgte die…

        Auszeichnung für Balmertshofener Friedhof

          Bei der Jahreshauptversammlung des Kreisverbandes Gartenbau und Landespflege überreichte Landrat Torsten Freudenberger dem Vertreter der Marktgemeinde Pfaffenhofen eine hohe Ehrung für den Friedhof in Balmertshofen. Namens der Schirmherrin Ulrike Scharf, Bayerische Staatsministerin für Umwelt und Verbraucherschutz überreichte er 3. Bürgermeister Karlheinz Thoma die Staatsurkunde und eine Bronzeplakette. Der Friedhof in Balmertshofen gehört zu den Landessiegern im bayernweiten Wettbewerb „Unser…

          Filter